leppington
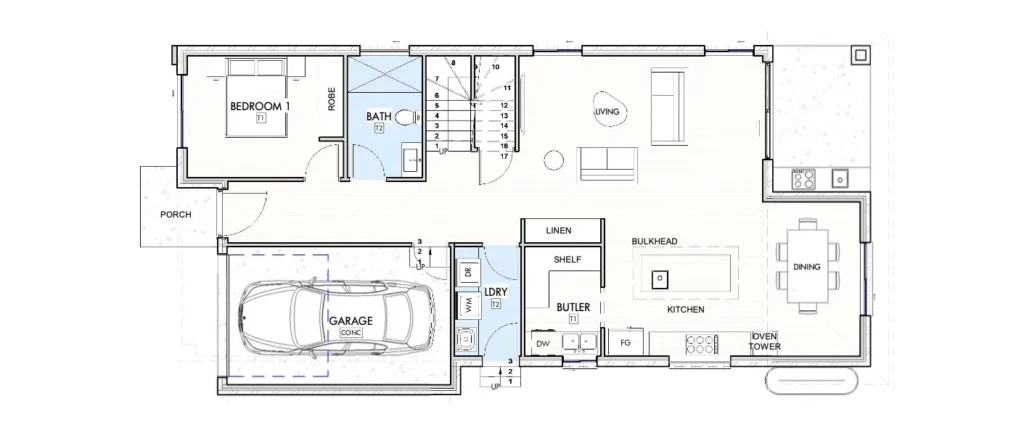
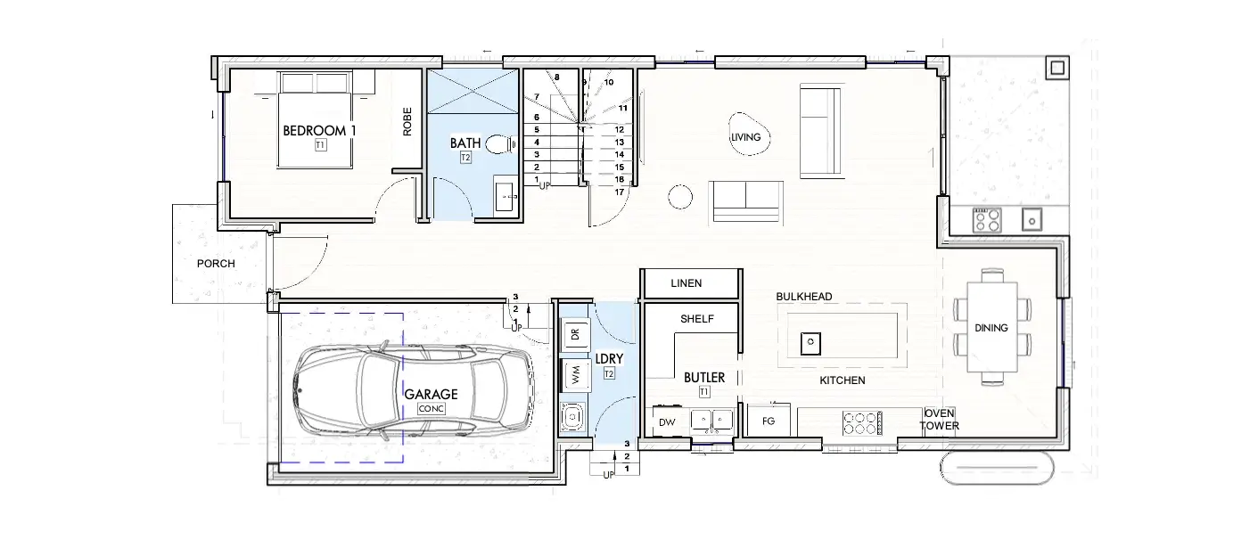
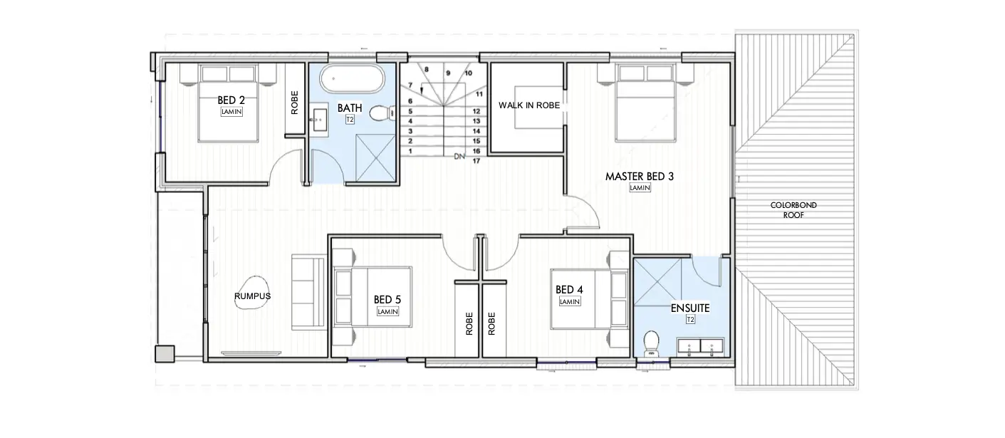
The Lethbridge design by Behl Homes is a modern double-storey residence that combines stylish architecture with practical family living. It features spacious interiors, a well-planned layout, and a bright, open atmosphere, creating a comfortable and inviting home. Designed for both everyday living and family activities, Lethbridge offers the perfect balance of functionality and contemporary style.
Property Overview
- Area 252.00 m2
- 5 Bedrooms
- 3 Bathroom
- 1 Car Space
- House Design Double Storey
Features
- Modern Home Design
- Spacious Interior Layout
- Natural Light Filled Rooms
- Efficient Floor Planning
- High-Quality Finishes
- Comfortable Bedrooms
- Secure Parking Space
- Stylish Kitchen Area
Homes by Behl Homes
At Behl Homes, we focus on creating high-quality residential homes that combine modern design, durability, and comfort. With years of industry experience, we ensure every project reflects strong craftsmanship, attention to detail, and thoughtful planning. The Lethbridge design is a perfect example of a home built for convenience, elegance, and everyday family living.
Start Your Dream Home Journey
Interested in the Lethbridge design? Let’s help you make it your new home.
Phone: 0433 480 575 | 0433 674 152
Email: [email protected]
Contact Details
For inquiries or assistance, contact us anytime via phone or email for prompt support.
- 0433 480 575
- 0433 674 152
- [email protected]
- 1/255 Edmondson Avenue, Austral, NSW 2179
Other Property
Oranpark
With years of industry experience, our builders deliver flawless finishes every time.
5
3
1
365.69 sq.m
Nankin
With years of industry experience, our builders deliver flawless finishes every time.
8
3
2
655.69 sq.m
Menangle
With years of industry experience, our builders deliver flawless finishes every time.
5
3
2
365.69 sq.m


